
Kapasitas Pengangkatan Truk Forklift 40 Ton
Forklift tugas berat, kapasitas angkat 40 ton, penggunaan populer untuk mengangkat kontainer, batu blok berat.
Mesin:WEICHAI WP12G340 Engine, atau CUMMINS QSM11 daya yang kuat, konservasi energi dan ramah lingkungan dengan emmisi rendah hingga Cina National Emmision tahap 4 .
Transmisi & torsi konversi: teknologi impor, kinerja yang andal, pemeliharaan yang nyaman, transmisi yang lancar, dan pengoperasian yang nyaman
Gandar yang digerakkan:diperkuat didorong gandar, pengurangan hub, kasus gandar kekuatan tinggi, kapasitas beban besar, stabilitas dan keandalan yang sangat baik.
Sistem kemudi:mengadopsi jembatan kemudi jenis silinder minyak melintang, kemudi hidrolik penuh, fleksibel dan ringan, andal.
Sistem pengereman:gunakan produk dewasa dari produsen profesional, rem cakram, disipasi panas lebih cepat, ringan, struktur sederhana dan mudah disesuaikan. Terutama memiliki kinerja termostability yang sangat baik ketika dimuat berat, efek pengereman stabil.
Sistem kontrol:perangkat kontrol katup pilot untuk membuat efisiensi kerja dan mengurangi intensitas tenaga kerja pengemudi
Sistem hidrolik:pertemuan pompa ganda, aliran sistem kecil, konsumsi daya rendah, kinerja yang andal, kinerja operasi yang sangat baik
Katup pengaman bukti ledakanuntuk pipeline:hindari pipa yang meledak tiba-tiba, pastikan keamanan dan keandalan kerja sistem.
Sistem pendinginan:mengadopsi oli transmisi independen dan pendinginan oli hidrolik, meningkatkan stabilitas sistem
Struktur bingkai:Pengerjaan yang indah & rangka tipe kotak yang tegas, meningkatkan stabilitas kendaraan yang melintang dan memanjang.Kendaraan melewati analisis elemen terbatas 3D, struktur unggul, kualitas yang andal; bagian pengelasan utama melalui pengujian non-destruktif, koordinasi yang efektif dengan struktur yang diperkuat、Jembatan、Kotak.
Ban:merek bersama sino-us, tahan terhadap keausan dan sengatan, ban berkekuatan tinggi, menanggung beban berat - aman dan dapat diandalkan
Garpu:posisi garpu hidrolik, pengoperasian yang mudah, dan mengurangi intensitas tenaga kerja pengemudi
Tiang: tiang internal-eksternal tipe kotak, bantalan roller serba khusus, tingkatkan kinerja pengangkatan
Cab:dengan AC dan pemanasan, dan membran pecah, bukti ledakan, isolasi panas, mencegah silau, isolasi suara. Meredam kabin mewah dengan sunroof, pemandangan lebar dan kursi yang nyaman, kontrol yang fleksibel.
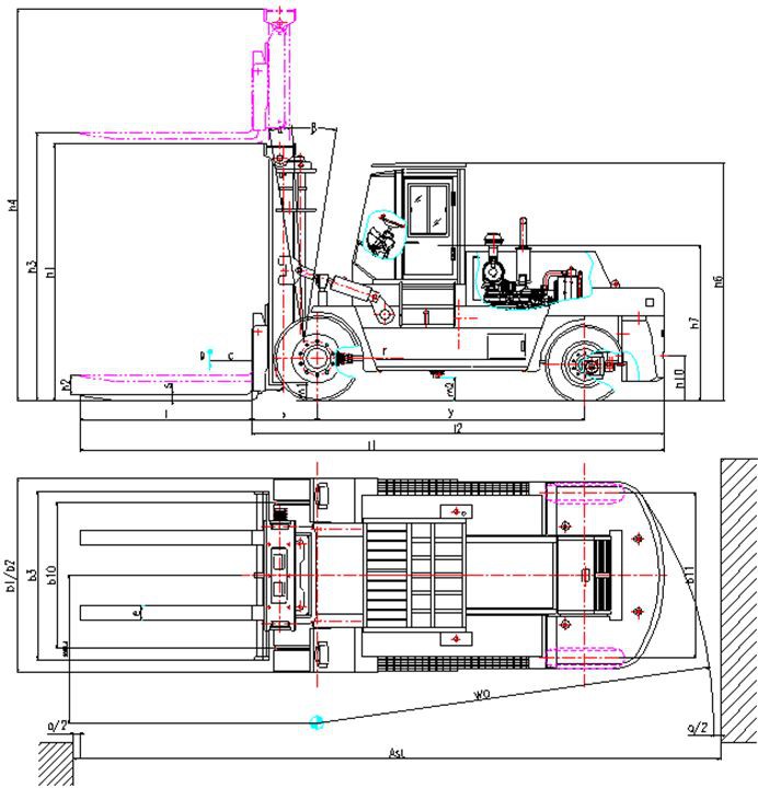
Spesifikasi
| 项目Item | 项目内容 Desc. | unit 单位 | Model |
| HNF-400 | |||
| 特性 Fitur | 起重量/载荷 Berperingkat Beban | T(t) | 45 |
| 载荷中心距 Pusat beban | c(mm) | 1200 | |
| 轴距 Wheelbase | y(mm) | 5000 | |
| 重量 Kelas | 自重 Berat | Kg | 53000 |
| 车轮底盘Chassis | 轮胎规格:前 Ban Spek.:Depan | 18.00-25-40PR | |
| 轮胎规格:后 Ban Spek.:Belakang | 18.00-25-40PR | ||
| 车轮,数量前/后(X-驱动轮)Ban Qty, depan/belakang (roda penggerak X) | 4\2 | ||
| 轮距:前 Tapak Roda:Depan | b10(mm) | 3030 | |
| 轮距:后 Tapak Roda:Belakang | b11(mm) | 2786 | |
| 基本尺寸Dimension | 门架/货叉架前/后倾角Mast/carriage tilt angle (depan/belakang) | Derajat(°) | 5\10 |
| 门架回缩时高度 Tinggi tiang (penurunan garpu) | h1(mm) | 4625 | |
| 标准起升高度 Tinggi angkat Tiang | h3(mm) | 4000 | |
| 作业时最 tinggi 高度 Max.lifting | h4(mm) | 6560 | |
| 护顶架高度 (驾驶室高度) Tinggi ke pelindung kepala (tinggi ke taksi) | h6(mm) | 3900 | |
| 总长 (含货叉长度) Tinggi keseluruhan (dengan garpu) | l1(mm) | 9900 | |
| 货叉垂直前表面至车辆后端距离 permukaan vertikal depan Garpu ke ujung belakang kendaraan | l2(mm) | 8000 | |
| 总宽 Lebar keseluruhan | b1/b2(mm) | 4160 | |
| 货叉尺寸 Fork yang berbeda | s/e(mm) | 2400X300X135 | |
| 货叉架宽度 Lebar gerbong garpu | b3(mm) | 3400 | |
| 门架下最小离地间隙 满载 Mast min ground clearance (dengan beban) | m1(mm) | 300 | |
| 轴距中心最小离地间隙 满载Wheelbase center min ground clearance (dengan beban) | m2(mm) | 460 | |
| 最小转弯半径 Min.Turning radius | Wa(mm) | 8000 | |
| 运行速度 (满载/无载) Kecepatan perjalanan (dengan beban/tanpa beban) | km/jam | 22/25 | |
| 功能参数Performance | 最第起升速度(满载/无载)Max.lifting speed(dengan load/without load) | mm/s | 200/250 |
| 最第下降速度(满载/无载)Max.Menurunkan kecepatan (dengan beban/tanpa beban) | mm/s | 300 | |
| 牵引力 Traksi | N | 250000 | |
| 爬坡度(满载/无载)Gradeablity(dengan load/without load) | % | 25 | |
| rem 行车制动 Mengemudi | 湿式多片式 Cakram basah berdingin oli | ||
| 内燃机 Mesin | 内燃机生产厂家/型 merek/model mesin号 | 可选 一 Opsional | 潍柴 Mesin Weichai |
| WP12G340(250kW国III) | |||
| 可选 二 Opsional dua | 西安康明斯 Xi'an Cummins | ||
| QSM11 250kW | |||
| 气缸数目Cylinder No. | 6 | ||
| 其他 Lain | 变速箱 Penularan | 液力变矩器 Konverter torsi | |
| 属具工作压力 tekanan kerja Lampiran | Bar | ||
| 属具用的油量 Lampiran menggunakan jumlah oli | l/min |

Tag populer: forklift truk angkat kapasitas 40 ton, Cina, produsen, pabrik, disesuaikan
Anda Mungkin Juga Menyukai
Kirim permintaan










